second
Andrychów, ul. Krakowska 29
pracujemy 10:00-16:00
:
NR OFERTY: DM/7026/25
LOKALIZACJA: Andrychów
POW. DZIAŁKI: 556 m2
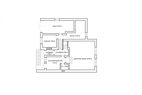
POW. DOMU: 220 m2
CENA: 730 000 PLN

Andrychów - dom jednorodzinny w zabudowie bliźniaczej usytuowany na działce o pow. 556 m2. Budynek po kapitalnym remoncie kilka lat temu ( wymieniona więźba dachowa i pokrycie dachu, stolarka okienna i drzwiowa, instalacje, wykończenie dwóch łazienek....). Powierzchnia całkowita domu 220 m2, użytkowa 120 m2. Część mieszkalna budynku to duży pokój dzienny (z wyjściem do ogrodu) połączony z dużą , otwartą kuchnią, trzy sypialnie, dwie łazienki ( jedna z wanną, druga z kabiną prysznicową, dwa przedpokoje. Do pow. całkowitej dochodzi garaż, kotłownia, pom. gospodarcze i wysokie strychy. W budynku znajdują się jeszcze dodatkowe pomieszczenia z oddzielnym wejściem, które mogą być wykorzystane pod działalność gospodarczą (np. biuro, gabinet) a składające się z dużego pomieszczenia 30 m2, przedpokoju ( poczekalnia) i toalety (służącej obecnie za pralnię. Do budynku doprowadzone wszystkie media, ogrzewanie gazowe. Dojazd asfaltową drogą gminną. Bardzo dobra lokalizacja. Nowa cena 730 000 PLN